Jass Team
Izgradnja i prodaja stanova

Nova lokacija
Jass Team
Vladimira Matijevića bb, Veternik
OBJEKAT U IZGRADNJI
Stambeno poslovni objekat Vladimira Matijevića bb, Veternik
INVESTITOR: Jass Team
MESTO: Veternik
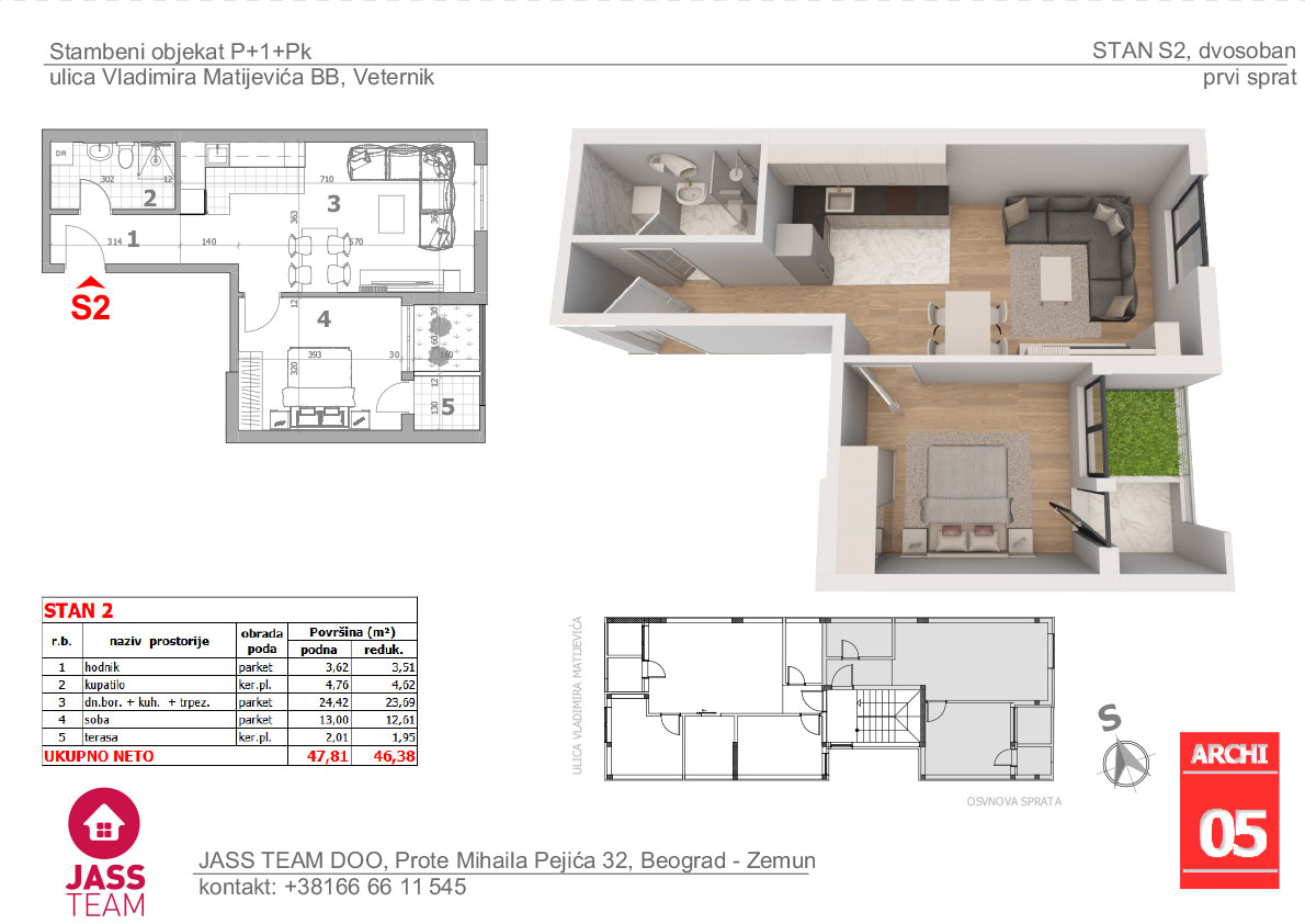
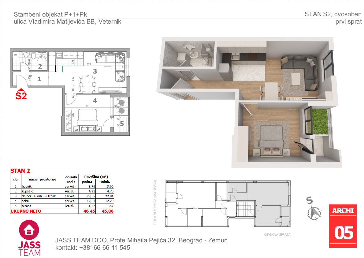
STAMBENI OBJEKAT (Pr+1+Pk)
POČETAK GRADNJE: jun 2025 godine
ZAVRŠETAK GRADNJE: oktobar 2026 godine
U ulici Vladimira Matijevića bb, u Veterniku, gradimo stambeni objekat koga čine četri lamele sa ukupno 12 stanova , spratnosti (Pr+1+Pk). Ovaj projekat pažljivo je osmišljen kako bi ponudio idealnu ravnotežu između funkcionalnosti, estetike i udobnosti.
Jedno od ključnih obeležja našeg graditeljskog pristupa jeste posvećenost kvalitetu, udobnosti i sigurnosti. Svaki stan biće opremljen savremenim i stilizovanim elementima enterijera, biranim s posebnom pažnjom da zadovolje i najzahtevnije estetske standarde. Prostrane sobe, maksimalno iskorišćenje kvadrature i funkcionalni rasporedi prostorija omogućavaju da se svaki kutak vašeg budućeg doma koristi sa svrhom. Posebna pažnja posvećena je stvaranju svetlih, prozračnih enterijera koji pružaju osećaj komfora tokom celog dana.
Mirno okruženje – idealno mesto za novi početak
Naš cilj je da vam obezbedimo ne samo kvalitetan stan, već i mirno i bezbedno životno okruženje – idealno za porodice, parove i sve one koji teže skladnom načinu života.
Zaslužujete dom kakav ste oduvek želeli
Priuštite sebi životni prostor koji spaja moderan dizajn, funkcionalnost i mirnu lokaciju. Izaberite stan iz naše ponude i napravite prvi korak ka kvalitetnijem načinu života.
Odaberite nekretninu iz ponude
Lamela I
Lamela II
Lamela III
Lamela IV
Vrhunski materijali, vrhunski kvalitet gradnje
Naši projekti su pažljivo izrađeni kako bi pružili maksimalnu udobnost i pogodnost svojim vlasnicima. Mi se možemo pohvaliti raznim ponudama koje ispunjavaju različite potrebe različitih kupaca. Za sva pitanja koja bi nam želeli postaviti o našem poslovanju, ponudi i gradnji slobodno nam se obratite a mi ćemo se potruditi da Vam u što kraćem roku izađemo u susret.

Jass Team, Novi Sad
Pavleka Miškine br. 13
Lako do stana
Zakažite sastanak
Za sve informacije u vezi kupovine stanova, parking mesta i lokala, kontaktirajte nas a mi ćemo se potruditi da osmislimo najbolje rešenje i ponudu za vas. Zakažite sastanak sa našim stručnim timom i uverite se u kvalitet vašeg budućeg doma.






